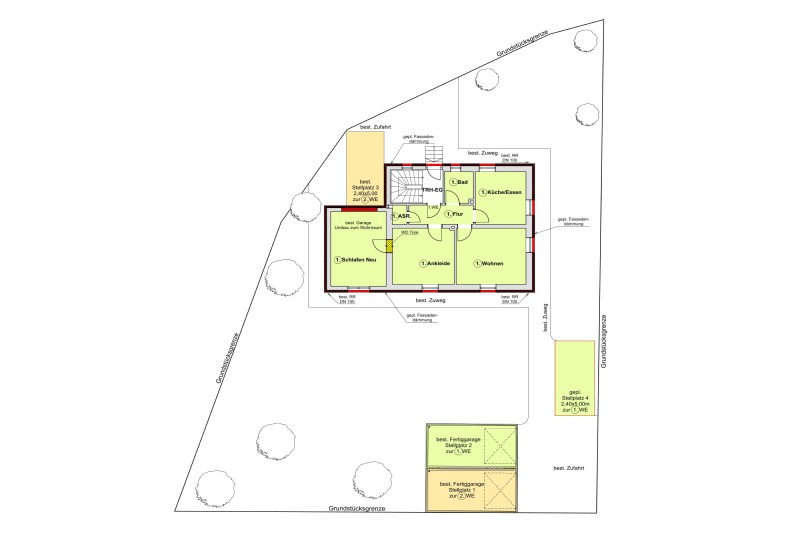
Abgeschlossenheitserklärung für ein Wohnhaus

Abgeschlossenheitserklärung für ein Wohnhaus

Abgeschlossenheitserklärung für Wohnhaus